Three Bed
Three Bathroom
Infinity Pool
Private Balcony
The Royal Giraffe Penthouses
Royal Giraffe Penthouses deliver the ultimate African luxury investment potential - private infinity pools, panoramic Indian Ocean views, and expansive living spaces that command premium rental rates and exceptional capital growth. Own Zanzibar's most exclusive address where discerning investors secure both lifestyle prestige and portfolio performance in East Africa's most coveted penthouse collection.
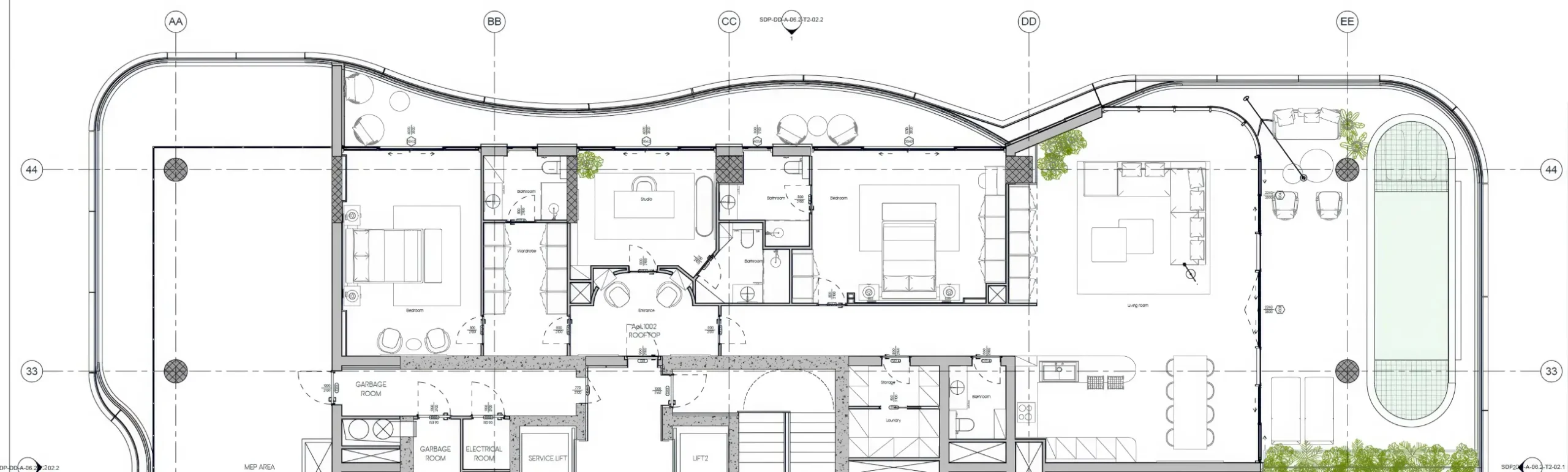
Zanzibar Penthouse Apartments
Ultra-luxury top-floor residences featuring expansive open-plan living, premium European materials, designer furniture collections, and breathtaking Indian Ocean panoramas. Each penthouse includes private infinity pools and extensive terraces.
Spanning the building's entire top level with floor-to-ceiling windows and massive outdoor entertaining spaces. These fully-furnished residences showcase the finest porcelain flooring, solid surface features, and comprehensive lighting systems across generous floor plans.
Zanzibar's only penthouse residences with private infinity pools represent exceptional investment potential - whether as the ultimate African holiday retreat, premium rental properties, or rare architectural assets guaranteed to appreciate in East Africa's most exclusive market.
Starting Prices from $1,571,000
Apartment Size
Location
Premium Materials & Finishes
The Royal Giraffe Penthouses establish an exceptional standard of residential luxury through the most comprehensive selection of premium European materials and architectural systems in the development.
Over 260 square metres of premium porcelain flooring systems create seamless transitions between indoor and outdoor living spaces. The sophisticated interplay of Roma Marfil and Tanzania Nut collections defines distinct zones across the penthouse's generous footprint while maintaining visual cohesion throughout multiple levels.
Advanced lighting infrastructure encompasses over 100 individual fixtures, including extensive LED strip installations, precision adjustable spotlighting arrays, and architectural accent systems. This creates layered lighting scenarios suitable for intimate gatherings and grand entertaining alike.
Massive curtain wall installations spanning 140 square metres maximise panoramic ocean vistas, while multiple oversized sliding door systems create extraordinary indoor-outdoor flow. These installations represent the largest glazing systems in the development.
Extensive solid surface installations cover 60 square metres of outdoor terraces, complemented by substantial natural Italian travertine features spanning 41 square metres. These materials create sophisticated outdoor entertaining spaces befitting penthouse-level living.
Multiple custom bathroom installations feature precision shower enclosures and bespoke vanity systems, while comprehensive ceiling installations include nearly 200 square metres of suspended systems with integrated natural wood elements for outdoor areas.
Advanced entry systems with multiple access points ensure privacy and exclusivity, while precision-engineered aluminium window systems provide optimal climate control across the extensive floor plan with air conditioning throughout.
Representing the ultimate expression of luxury resort living through uncompromising material selection and architectural execution.
Designer Furniture & Furnishings
The Royal Giraffe Penthouses represent the pinnacle of residential furniture design through a stunning collection spanning multiple levels and expansive living zones.
The centerpiece modular seating collection transforms vast entertaining spaces through intelligent configuration options - from intimate conversation areas to grand social settings. Complemented by precision-crafted travertine dining tables and matching desk systems that create sophisticated work-from-home environments.
Coordinated bedroom collections feature advanced wardrobe systems with hidden engineering and cushioned closure technology, paired with luxurious bed platforms and matching bench seating that creates hotel-suite ambiance across multiple bedrooms.
Hand-woven leather stools, cast aluminium accent tables in distinctive finishes, and architectural square ottomans provide flexible seating and surface options throughout the expansive floor plan.
The penthouse terraces showcase complete outdoor furniture ecosystems including modular seating with natural teak construction, innovative fiberglass loungers, and distinctive padded armchairs with woven fiber details, creating multiple outdoor entertainment zones, ideal for relaxing in your private infinity pool taking in the awe-inspiring view.
Extensive handloomed rug collections in both contemporary and tribal patterns define distinct areas across the penthouse's generous spaces, while sophisticated linen curtain systems provide privacy and light control throughout multiple exposures.
Comprehensive lighting collections include adjustable floor systems and sophisticated table lamps that create perfect ambiance across day and evening entertaining or relaxation scenarios.
Ready to reserve yours? Contact our sales team

Related Apartments
Paje second-line beachfront property in Zanzibar Paje at the landmark development Shivo Towers. Our exclusive portfolio features property such as The luxurious Royal Giraffe Penthouses, The Mezzanine Collection, Presidential Suites and even entry level investment apartments such as our Prestige Studios.









